Auroville Urban Axis
The city of Auroville was born in the 1960s as an utopian experimental town in southeastern India. The original urban plan failed, becoming a great footprint on the land that the jungle has devoured over the decades.
While the construction has been limited due to the lack of a successful evolution plan, the population increseases exponentially, causing an important housing problem that the Government of India has decided to solve by developing a new masterplan based on the interpretation of part of the original project from the 1960s.
Auroville Urban Axis was born as an alternative to the government masterplan and aims to develop the necessary housing after years of need. The project is shaped as a catalog of urban spaces surrounded by a housing development system based on an interpretation of the traditional hut.
The building emerges over the jungle as a concrete skeleton that overlooks the sourroundings. It reproduces architecture as a system designed to build infrastructure and housing, capable of evolving with the population of Auroville.
While the construction has been limited due to the lack of a successful evolution plan, the population increseases exponentially, causing an important housing problem that the Government of India has decided to solve by developing a new masterplan based on the interpretation of part of the original project from the 1960s.
Auroville Urban Axis was born as an alternative to the government masterplan and aims to develop the necessary housing after years of need. The project is shaped as a catalog of urban spaces surrounded by a housing development system based on an interpretation of the traditional hut.
The building emerges over the jungle as a concrete skeleton that overlooks the sourroundings. It reproduces architecture as a system designed to build infrastructure and housing, capable of evolving with the population of Auroville.
- 00 - Description
- 01 - Context Sketch
- 02 - Concept Sketch 1
- 03 - Concept Sketch 2
- 04 - Concept Sketch 3
- 05 - Concept Façade 1
- 06 - Concept Façade 2
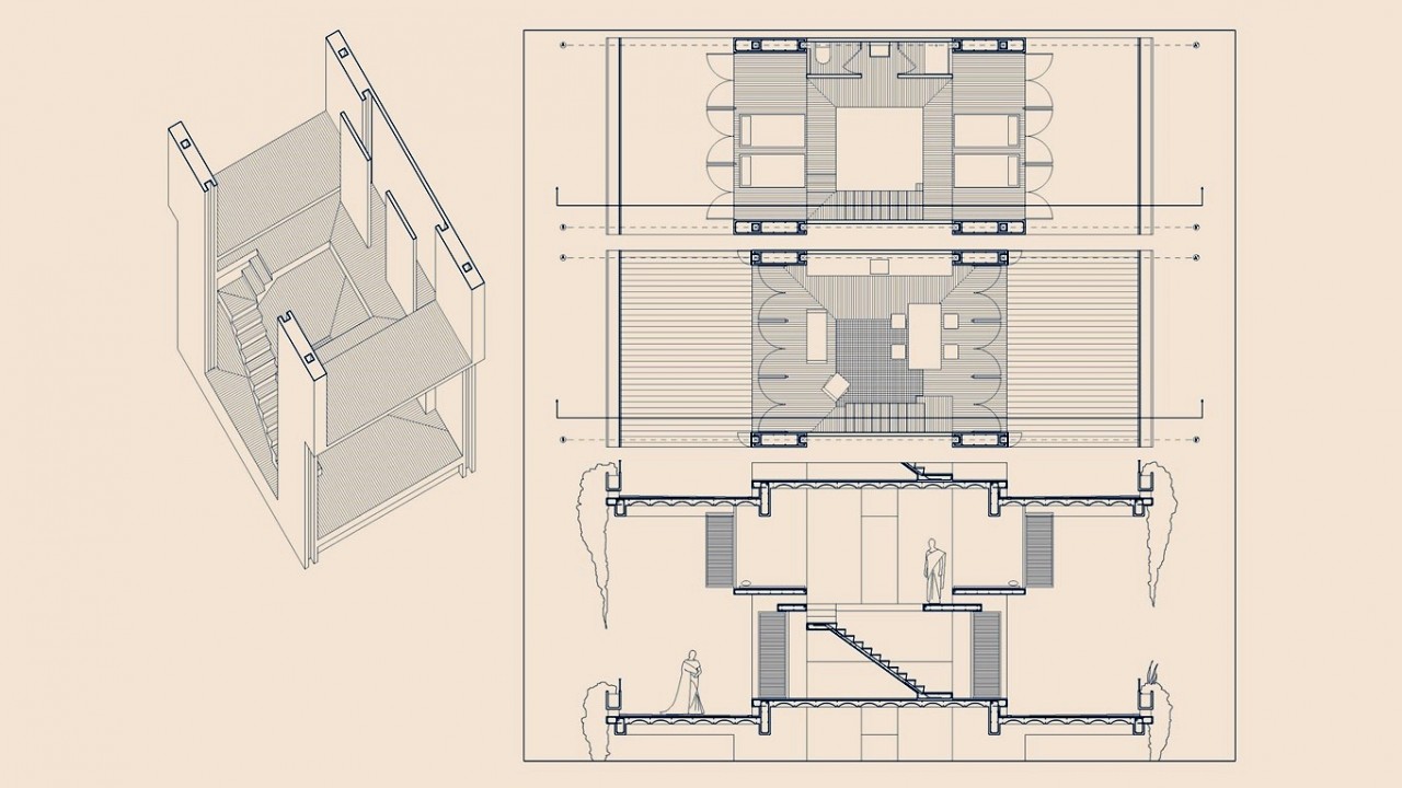
- 07 - House Prototype
- 08 - House Sketch 1
- 09 - House Sketch 2
- 10 - Axonometric
- 11 - Gateway
- 12 - Pedestrian Street
- 13 - Main Square 1
- 14 - Main Square 2
- 15 - Main Square Model
- 16 - Vaulted Street
- 17 - Belvedere
- 18 - Final Sketch