Curvas de encuentro
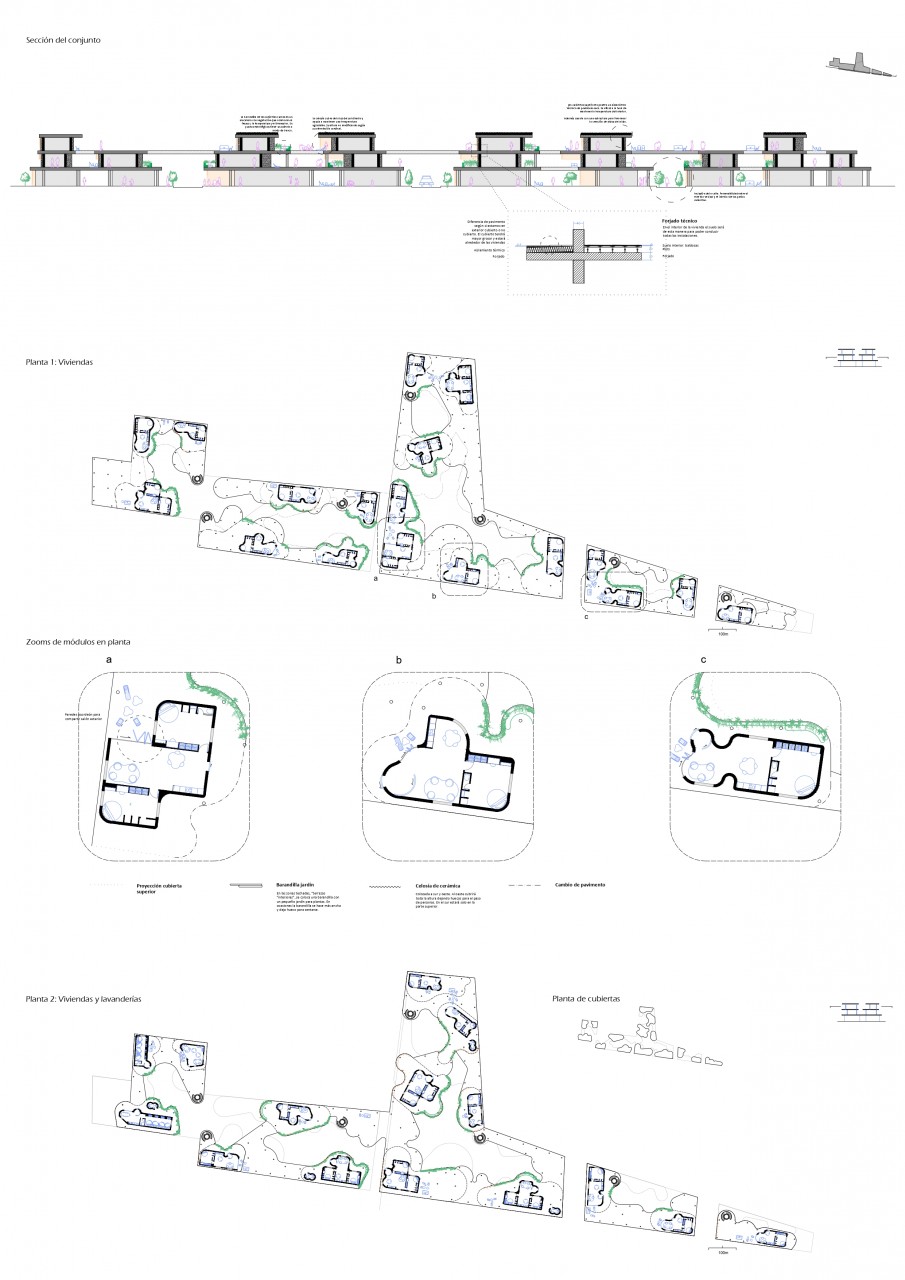
El proyecto se sitúa en un solar irregular del barrio de la Soledat, Mallorca. Son viviendas colectivas para 40 personas de perfiles diferentes.
Analizando sus necesidades he decidido agruparlas: políticas y profesionales, personas en paro y viudas, obreras y trabajadoras del hogar, deportistas y policías. Existirá la opción de compartir vivienda. Así, dentro del hogar están los servicios mínimos para tener acceso a una amplia variedad en las zonas comunes. Las zonas comunes se encuentran en la planta baja, de cristal, pública, permeable y abierta. Está dividida en cinco partes: zona de ecología-cine, arte, deporte-infancia, cocina-descanso y el estudio. Según el perfil se le asignará un tipo de vivienda.
La sucesión de los forjados curvos en oleaje de dobles y triples alturas crearán patios. Dejo las zonas intermedias entre viviendas al encuentro fortuito entre vecinas. Lugares donde ocurrirán actividades imprevistas. Las viviendas se abren a esos patios compartidos y cubiertos con un aire mediterráneo. Se difumina la línea entre lo interior y lo exterior. El mobiliario, móvil y reutilizado, facilitará los encuentros.
El análisis medioambiental de Mallorca ha sido fundamental para mi proyecto. He investigado y aplicado las necesidades de la flora y fauna autóctona, así como una serie de acciones medioambientales para mantener una temperatura agradable.
Gracias a la creación de espacios para el desarrollo de hobbies en comunidad, los encuentros improvisados y los servicios esenciales comunes, he conseguido configurar un espacio para vivir, de encuentro, convivencia y disfrute.
----------------------
The project is located on an irregular plot in the Soledat neighborhood, Mallorca. It consists of collective housing for 40 people with different profiles.
After analyzing their needs I have decided to group them: political and professional individuals, unemployed and widowed persons, workers and domestic workers, athletes and police officers. Each person will have the option to share their dwelling.
Thus, within the home, there are only the minimum services needed, with access to a wide variety of amenities in the common areas. All these collective areas are located on the ground floor: glass-walled to favour a public, permeable and open. It is grouped into five categories: ecology-cinema, art, sports-infancy, kitchen-rest, and study. According to the individual profile, it will be assigned a specific type of dwelling.
The succession of curved slabs in waves of double and triple heights will create courtyards. I leave the intermediate areas between homes to the chance encounters between neighbors. Places where unexpected activities will occur. The homes open to these shared courtyards, covered with a Mediterranean air. The line between the interior and exterior is blurred. The mobile and reused furniture will facilitate the meetings.
The environmental analysis of Mallorca has been fundamental for my project. I have researched and applied the needs of the native flora and fauna, as well as a series of environmental actions to maintain a pleasant temperature.
Thanks to the creation of spaces for the development of community hobbies, unplanned meetings, and common essential services, I have managed to configure a space for living, meeting, coexistence, and enjoyment.
Analizando sus necesidades he decidido agruparlas: políticas y profesionales, personas en paro y viudas, obreras y trabajadoras del hogar, deportistas y policías. Existirá la opción de compartir vivienda. Así, dentro del hogar están los servicios mínimos para tener acceso a una amplia variedad en las zonas comunes. Las zonas comunes se encuentran en la planta baja, de cristal, pública, permeable y abierta. Está dividida en cinco partes: zona de ecología-cine, arte, deporte-infancia, cocina-descanso y el estudio. Según el perfil se le asignará un tipo de vivienda.
La sucesión de los forjados curvos en oleaje de dobles y triples alturas crearán patios. Dejo las zonas intermedias entre viviendas al encuentro fortuito entre vecinas. Lugares donde ocurrirán actividades imprevistas. Las viviendas se abren a esos patios compartidos y cubiertos con un aire mediterráneo. Se difumina la línea entre lo interior y lo exterior. El mobiliario, móvil y reutilizado, facilitará los encuentros.
El análisis medioambiental de Mallorca ha sido fundamental para mi proyecto. He investigado y aplicado las necesidades de la flora y fauna autóctona, así como una serie de acciones medioambientales para mantener una temperatura agradable.
Gracias a la creación de espacios para el desarrollo de hobbies en comunidad, los encuentros improvisados y los servicios esenciales comunes, he conseguido configurar un espacio para vivir, de encuentro, convivencia y disfrute.
----------------------
The project is located on an irregular plot in the Soledat neighborhood, Mallorca. It consists of collective housing for 40 people with different profiles.
After analyzing their needs I have decided to group them: political and professional individuals, unemployed and widowed persons, workers and domestic workers, athletes and police officers. Each person will have the option to share their dwelling.
Thus, within the home, there are only the minimum services needed, with access to a wide variety of amenities in the common areas. All these collective areas are located on the ground floor: glass-walled to favour a public, permeable and open. It is grouped into five categories: ecology-cinema, art, sports-infancy, kitchen-rest, and study. According to the individual profile, it will be assigned a specific type of dwelling.
The succession of curved slabs in waves of double and triple heights will create courtyards. I leave the intermediate areas between homes to the chance encounters between neighbors. Places where unexpected activities will occur. The homes open to these shared courtyards, covered with a Mediterranean air. The line between the interior and exterior is blurred. The mobile and reused furniture will facilitate the meetings.
The environmental analysis of Mallorca has been fundamental for my project. I have researched and applied the needs of the native flora and fauna, as well as a series of environmental actions to maintain a pleasant temperature.
Thanks to the creation of spaces for the development of community hobbies, unplanned meetings, and common essential services, I have managed to configure a space for living, meeting, coexistence, and enjoyment.
- 00 - Description
- 01 - Atmospheres
- 02 - Analysis
- 03 - Introduction floor 0
- 04 - Second part floor 0
- 05 - Third part floor 0
- 06 - Dwellings axonometry
- 07 - Furniture
- 08 - Sections
- 09 - Flora and fauna
- 10 - Climate actions
- 11 - Video