Sports complex over quarry
Se pretende la reincorporación de un tercer paisaje, una cantera abandonada, al paraje de la sierra malacitana. Para ello se recurrirá a un programa de ciudad deportiva amateur, entendiendo que ofrece una serie de instalaciones con suficiente interés y desarrollo para trabajar sobre el territorio: explanadas de césped, graderíos, una gran alberca y aljibes para riego y desagüe, sendero de acceso, residencia de deportistas, piscina y aparcamiento.
Se dota a la cantera de un nuevo enfoque, ahora será una cávea ocupada por pinos que asisten al evento deportivo. Los campos se acomodan en bancales de forma descendente hacia el paisaje, con el Mediterráneo como telón de fondo.
Enfrentado al graderío colosal, se erige una topografía artificial de hormigón, que oculta en sus entrañas las instalaciones del recinto. Sobre esta mesa pétrea se apoyará la residencia de deportistas.
Se trata de una pieza de dimensiones desmesuradas, que sobresale de la cantera hacia el paisaje para contemplar y ser contemplada. Pretende ser un alarde estructural de acero que nos recuerde que en su interior se alojan actividades físicas de alta intensidad.
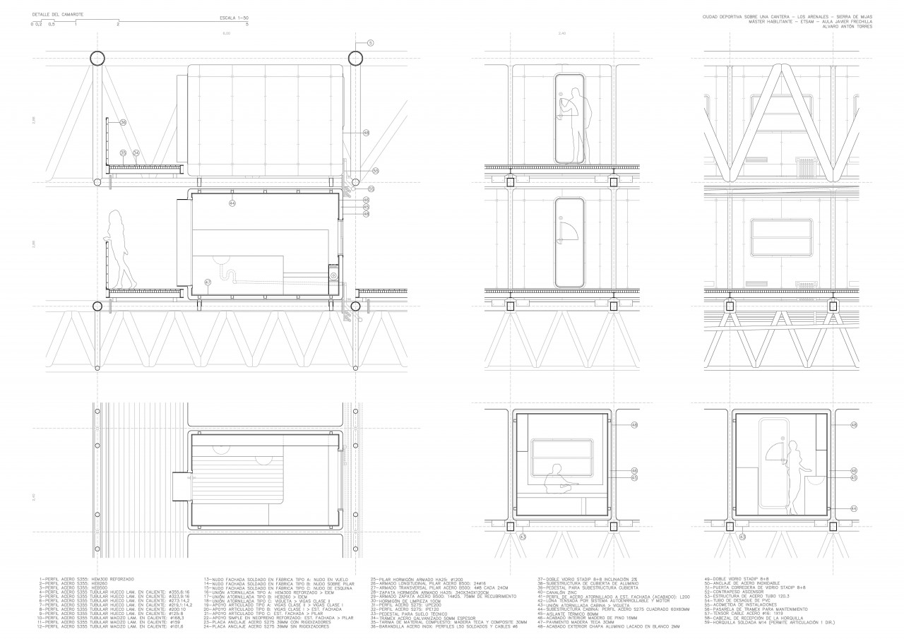
Todas las actividades son compartidas por los residentes, reservando los pequeños reductos de intimidad a las habitaciones-camarote. Se establece una equiparación metafórica entre el equipo deportivo y la tripulación de un navío, solo que en esta ocasión su actividad física no será la que determine el rumbo de la embarcación.
Se dota a la cantera de un nuevo enfoque, ahora será una cávea ocupada por pinos que asisten al evento deportivo. Los campos se acomodan en bancales de forma descendente hacia el paisaje, con el Mediterráneo como telón de fondo.
Enfrentado al graderío colosal, se erige una topografía artificial de hormigón, que oculta en sus entrañas las instalaciones del recinto. Sobre esta mesa pétrea se apoyará la residencia de deportistas.
Se trata de una pieza de dimensiones desmesuradas, que sobresale de la cantera hacia el paisaje para contemplar y ser contemplada. Pretende ser un alarde estructural de acero que nos recuerde que en su interior se alojan actividades físicas de alta intensidad.
Todas las actividades son compartidas por los residentes, reservando los pequeños reductos de intimidad a las habitaciones-camarote. Se establece una equiparación metafórica entre el equipo deportivo y la tripulación de un navío, solo que en esta ocasión su actividad física no será la que determine el rumbo de la embarcación.
- 00 - Description
- 01 - From the mountains
- 02 - Aerial view
- 03 - Complex sections
- 04 - From the quarry
- 05 - Stands
- 06 - Axonometry
- 07 - Structural details
- 08 - Athletes residence
- 09 - West elevation
- 10 - Longitudinal section
- 11 - Main floors
- 12 - Berth details
- 13 - Inside views