Teoría de las Ruinas
The "Theory of Ruins" in this project is compared to a discovered manuscript, representing spaces created behind massive stone structures with an intimate and personal character. The project draws inspiration from the "Teatro di Marcello," which exemplifies the theory of colonizing a ruin. The ruin itself aims to connect the small-scale neighborhood with the larger maritime infrastructure and beach.
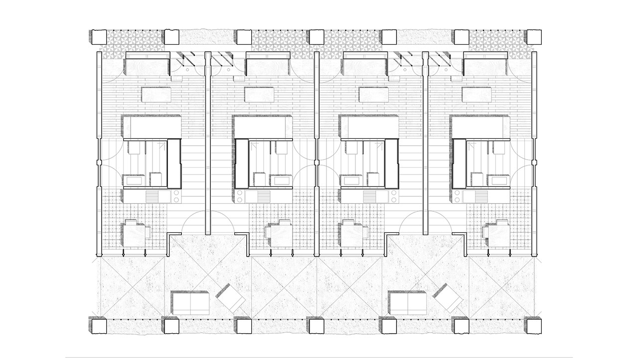
Behind this massive archetypal structure it features residences integrated as wooden boxes, fostering a shared living ecosystem. The design includes two facades, one facing the cloister and another more private one with a double window-greenhouse. This interplay of small wooden boxes within the stone structure brings life to the colonized ruin.
The project culminates in a tower-library, providing a view of the sea and completing the urban character of the ruin.
Behind this massive archetypal structure it features residences integrated as wooden boxes, fostering a shared living ecosystem. The design includes two facades, one facing the cloister and another more private one with a double window-greenhouse. This interplay of small wooden boxes within the stone structure brings life to the colonized ruin.
The project culminates in a tower-library, providing a view of the sea and completing the urban character of the ruin.
- 00 - Description
- 01 - Archè
- 02 - Poble Nou
- 03 - Sections
- 04 - Plans
- 05 - Téchne
- 06 - House sections
- 07 - House plan
- 08 - House axonometry
- 09 - Axonometry
- 10 - The Tower
- 11 - Video