Time Specific.
This project explores the role of time as in input in the design process.
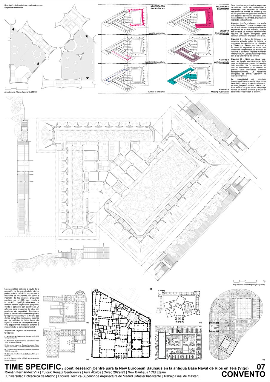
The fiction at the origin of this research is the proposal by Aula Ábalos to design a Joint Research Center from the New European Bauhaus directive, the creative wing of the European Green Deal, at the former site of Spanish Navy's School of Transmissions and Electricity (ETEA), a group of buildings currently abandoned and located in the harbour district of Teis, on the outskirts of Vigo (Galicia, Spain).
Let us first delve into the location and look north, towards Vigo’s Estuary. Consider Galician climatic conditions, with its constant humidity and abundant rainfall; cold temperatures in winter, pleasant in summer. This annual cycle nourishes the lush landscape of Galicia and shapes its vernacular architecture. If we remain observing for a few hours, we will perceive the tides, a monthly oscillation that subjects the boundary between land and sea to constant transformation. From its knowledge, ancestral trades linked to shellfish fishing and commerce emerge. Sooner or later, we will be interrupted by the hustle and bustle of daily life at the harbour, by the energy of shipyards, a key historical industry that has been also the origin of fierce labour struggles.
Now let’s go back to the New Bauhaus, which aims to deploy a European network of knowledge. The Union proposes integration, sustainability, and new beauty as the concepts of the European architectural brand it pursues. The question about European identity construction underlies this framework. How does a European body land in a natural, suburban, and industrial setting like the Vigo’s Estuary? In the face of climate change and as the spearhead of the Green Deal, how does it insert into Galician climate thermodynamics? How do we establish the institution of the future on the ruins of its predecessor?
The image we construct of the site emerges from studying it as a physical support activated by temporalities. These annual, monthly, and daily cycles give it scale, determine its material culture, and outline the possible ways of inhabiting it; parameters of subjective experience that endow it with a legible identity. If the architecture we design becomes specific to these times, if they activate it, we will get into resonance with the environment and participate in its identity, expanding it.
How to design with the specific times of a place is the question we propose.
The fiction at the origin of this research is the proposal by Aula Ábalos to design a Joint Research Center from the New European Bauhaus directive, the creative wing of the European Green Deal, at the former site of Spanish Navy's School of Transmissions and Electricity (ETEA), a group of buildings currently abandoned and located in the harbour district of Teis, on the outskirts of Vigo (Galicia, Spain).
Let us first delve into the location and look north, towards Vigo’s Estuary. Consider Galician climatic conditions, with its constant humidity and abundant rainfall; cold temperatures in winter, pleasant in summer. This annual cycle nourishes the lush landscape of Galicia and shapes its vernacular architecture. If we remain observing for a few hours, we will perceive the tides, a monthly oscillation that subjects the boundary between land and sea to constant transformation. From its knowledge, ancestral trades linked to shellfish fishing and commerce emerge. Sooner or later, we will be interrupted by the hustle and bustle of daily life at the harbour, by the energy of shipyards, a key historical industry that has been also the origin of fierce labour struggles.
Now let’s go back to the New Bauhaus, which aims to deploy a European network of knowledge. The Union proposes integration, sustainability, and new beauty as the concepts of the European architectural brand it pursues. The question about European identity construction underlies this framework. How does a European body land in a natural, suburban, and industrial setting like the Vigo’s Estuary? In the face of climate change and as the spearhead of the Green Deal, how does it insert into Galician climate thermodynamics? How do we establish the institution of the future on the ruins of its predecessor?
The image we construct of the site emerges from studying it as a physical support activated by temporalities. These annual, monthly, and daily cycles give it scale, determine its material culture, and outline the possible ways of inhabiting it; parameters of subjective experience that endow it with a legible identity. If the architecture we design becomes specific to these times, if they activate it, we will get into resonance with the environment and participate in its identity, expanding it.
How to design with the specific times of a place is the question we propose.
- 00 - Description
- 01 - Imaginary
- 02 - Territory. Study
- 03 - Territory. Intervene
- 04 - Urban. Hollow
- 05 - Urban. Fill
- 06 - Arch. Ground
- 07 - Arch. Cantilever
- 08 - Arch. Monastery
- 09 - Arch. Cloister
- 10 - Tectonic. TrombeWall
- 11 - Tectonic. RecycleRC
- 12 - Tectonic. PostressRC
- 13 - Conclusion. Inhabit
- 14 - Imaginary