Urban Membrane
In Madrid, over 1.7 million square meters of office space remain vacant, while thousands of people face difficulties in accessing decent housing. This project proposes transforming the iconic 'Los Cubos' building while simultaneously redefining what it means to inhabit in the current context.
Living today includes finding environments that address social challenges such as loneliness and disconnection, which particularly affect the elderly, young people, single-parent families, and others.
PROGRAM:
The program of this project is designed to directly address the social issues arising from loneliness. It includes a variety of spaces and activities that foster interaction and the well-being of users.
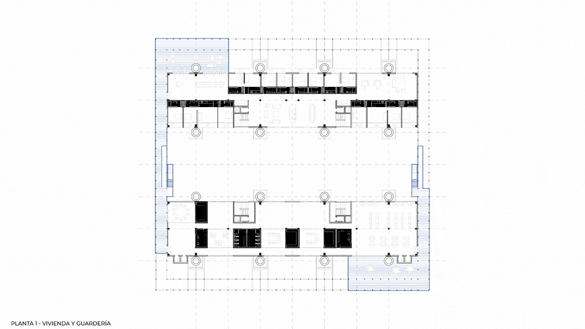
Some of the most notable spaces include sports areas, activity workshops, an auditorium, a library, and a small medical center. Additionally, spaces dedicated to mental health have been incorporated, such as individual and group therapy rooms, as well as relaxation spaces, quiet rooms, and meditation areas.
Therapeutic gardens, small greenhouses, and terraces have also been planned, improving the connection with nature and emotional health. Also noteworthy is the daycare with a children's library, providing support for single-parent families.
TRANSFORMATION:
The main intervention of this project is a steel structure that wraps around the building, acting as a protective barrier against the M-30, isolating it from noise and pollution.
This lightweight and flexible structure functions as a double membrane that transforms the existing building, adapting it for residential and social use. It contains the external circulations, facilitates air flow, preserves the unique views, and complements the connection between the prisms. In addition to improving environmental quality, the new structure creates a direct relationship with the outside, always giving users access to rest and recreation areas.
The original central communication core is removed, and the base is modified, creating courtyards and openings that allow light to reach spaces that were previously used as parking areas.
The building is organized through six access cores: four dedicated to private circulation, providing access to the residences, and two central cores that connect to the public section of the base. The other two cores, contained within the metal structure, allow movement between different levels of the building, granting access to the public area without entering the private section.
HOUSING:
The housing within the project, in the four prisms, is organized into two main zones. One of these zones is dedicated to private spaces: bedrooms and personal use areas, while the other is for communal living, where the kitchen, dining room, and other meeting spaces are located, fostering social interaction.
The modular design of the housing allows for adjusting the size of each unit according to the number of users. By opening the wall that connects the bedrooms, larger and more adaptable spaces can be created for different types of families or individuals, all without losing the sense of privacy. Additionally, the large meeting spaces and terraces facilitate smooth social interaction while maintaining a certain degree of privacy.
These residences are intended as temporary solutions, offering lower prices in exchange for community services or helping other users of the building, to encourage supportive and collaborative coexistence.
Living today includes finding environments that address social challenges such as loneliness and disconnection, which particularly affect the elderly, young people, single-parent families, and others.
PROGRAM:
The program of this project is designed to directly address the social issues arising from loneliness. It includes a variety of spaces and activities that foster interaction and the well-being of users.
Some of the most notable spaces include sports areas, activity workshops, an auditorium, a library, and a small medical center. Additionally, spaces dedicated to mental health have been incorporated, such as individual and group therapy rooms, as well as relaxation spaces, quiet rooms, and meditation areas.
Therapeutic gardens, small greenhouses, and terraces have also been planned, improving the connection with nature and emotional health. Also noteworthy is the daycare with a children's library, providing support for single-parent families.
TRANSFORMATION:
The main intervention of this project is a steel structure that wraps around the building, acting as a protective barrier against the M-30, isolating it from noise and pollution.
This lightweight and flexible structure functions as a double membrane that transforms the existing building, adapting it for residential and social use. It contains the external circulations, facilitates air flow, preserves the unique views, and complements the connection between the prisms. In addition to improving environmental quality, the new structure creates a direct relationship with the outside, always giving users access to rest and recreation areas.
The original central communication core is removed, and the base is modified, creating courtyards and openings that allow light to reach spaces that were previously used as parking areas.
The building is organized through six access cores: four dedicated to private circulation, providing access to the residences, and two central cores that connect to the public section of the base. The other two cores, contained within the metal structure, allow movement between different levels of the building, granting access to the public area without entering the private section.
HOUSING:
The housing within the project, in the four prisms, is organized into two main zones. One of these zones is dedicated to private spaces: bedrooms and personal use areas, while the other is for communal living, where the kitchen, dining room, and other meeting spaces are located, fostering social interaction.
The modular design of the housing allows for adjusting the size of each unit according to the number of users. By opening the wall that connects the bedrooms, larger and more adaptable spaces can be created for different types of families or individuals, all without losing the sense of privacy. Additionally, the large meeting spaces and terraces facilitate smooth social interaction while maintaining a certain degree of privacy.
These residences are intended as temporary solutions, offering lower prices in exchange for community services or helping other users of the building, to encourage supportive and collaborative coexistence.
- 00 - Description
- 01 - analysis
- 02 - basament
- 03 - plans
- 04 - housing
- 05 - elevation
- 06 - section 1
- 07 - section 2
- 08 - detail
- 09 - model 1
- 10 - model 2
- 11 - Video