Vertical Urban Living
Understanding skyscrapers as a development tool, the object of the project is a residential tower in the Madrid Río area.
The implementation of the tower in an environment characterized by the vegetation and the unevenness of the linear garden articulated around the course of the Manzanares River presents a certain complexity. The residential programme is complemented by leisure and cultural facilities with which it is intended to meet the needs of the place.
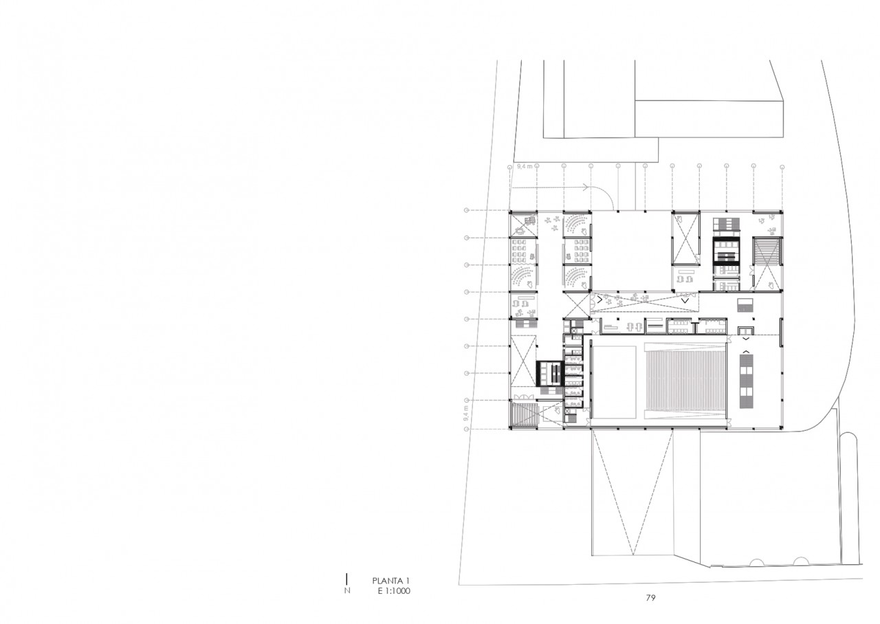
The project is based on two towers that rise on a plinth. This piece, as a base, allows us to understand the space that is created under and above it as an extension of the urban space.
The implementation of the tower in an environment characterized by the vegetation and the unevenness of the linear garden articulated around the course of the Manzanares River presents a certain complexity. The residential programme is complemented by leisure and cultural facilities with which it is intended to meet the needs of the place.
The project is based on two towers that rise on a plinth. This piece, as a base, allows us to understand the space that is created under and above it as an extension of the urban space.
- 00 - Description
- 01 - Visual impact
- 02 - Access floor plan
- 03 - Social facilities
- 04 - Productive Housing
- 05 - Student residence
- 06 - Main facade
- 07 - Structure
- 08 - Facade system
- 09 - Unit
- 10 - MODEL 1:200
- 11 - Video